Jersey Barriers

Jersey Barriers

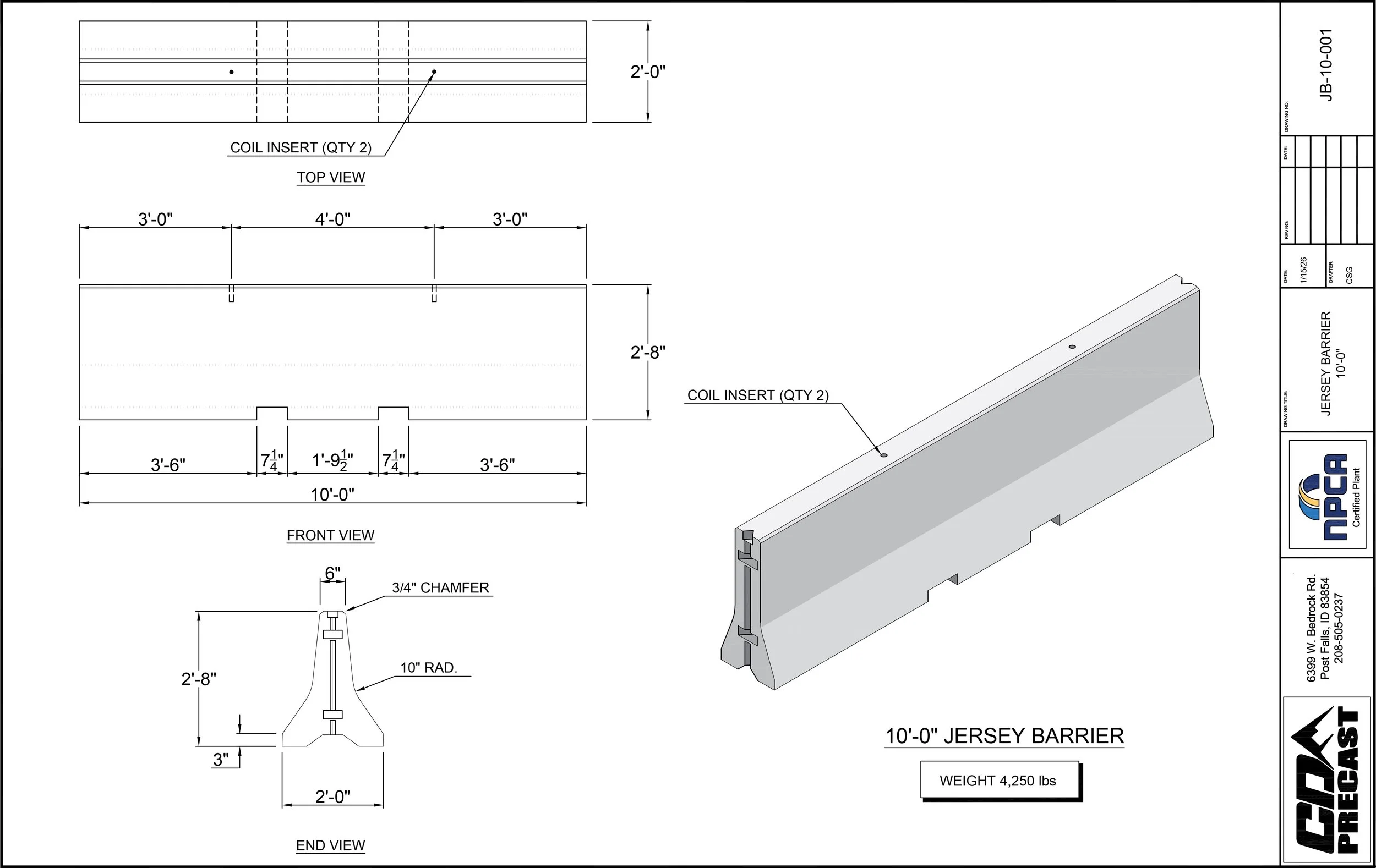
Our custom precast Jersey barriers provide durable, high-strength solutions for traffic control, lane separation, and site safety. Manufactured to meet the specific requirements of each project, these barriers are engineered for reliable impact resistance, long-term performance, and precise dimensions. Precast construction allows for faster installation and reduced on-site labor compared to traditional methods, while ensuring consistent quality and durability under heavy traffic and harsh environmental conditions.

Ideal for highways, construction zones, commercial properties, and industrial sites, our Jersey barriers offer a flexible, project-specific solution to manage traffic flow, and protect personnel and property.

JERSEY BARRIERS
Download PDF