ECOLOGY BLOCKS

Ecology Blocks

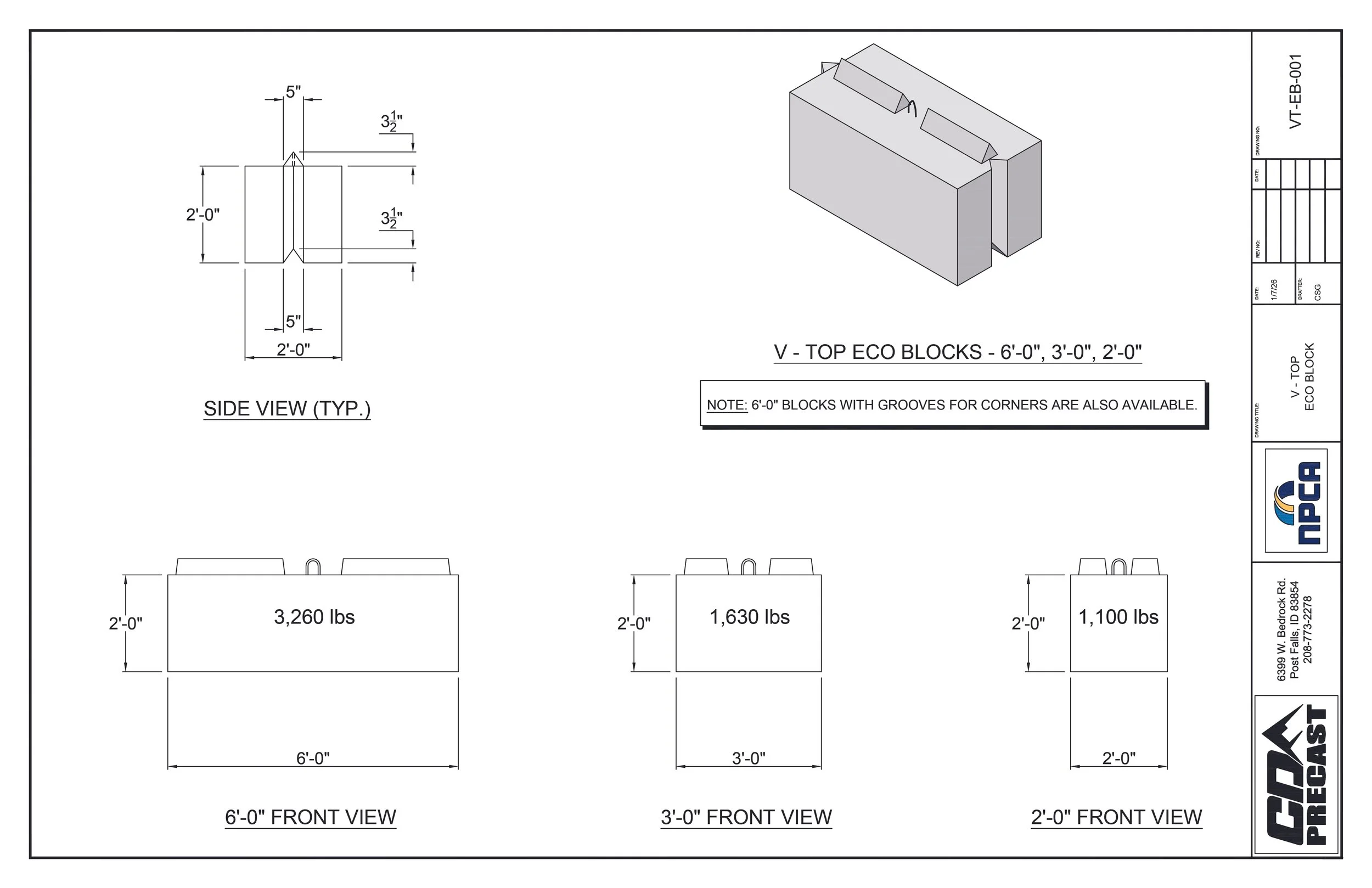
Our ecology blocks provide an economical, practical solution for temporary or non-structural site needs. Made from returned mud and recycled materials from the field, these precast blocks are ideal for applications such as erosion control, temporary barriers, stockpile containment, or landscaping projects where engineered specifications are not required. While they are not warrantied or spec-certified, ecology blocks offer a cost-effective way to address on-site challenges with minimal investment, making them a versatile option for contractors, municipalities, and property managers seeking a sustainable, budget-friendly solution.

ROUND TOP ECO BLOCKS
Download PDF

V-TOP ECO BLOCKS
Download PDF

FLAT TOP ECO BLOCKS
Download PDF