additional PRECAST CONCRETE SOLUTIONS

Dock Anchors, Parking Bumpers, Meter Vaults

Our miscellaneous precast products provide versatile, durable solutions for a wide variety of construction and infrastructure needs. From parking bumpers and dock anchors to thrust blocks, meter vaults, and other custom precast items, each product is manufactured from high-strength concrete to ensure long-lasting performance, structural integrity, and consistent quality. Precast construction allows for faster installation, reduced on-site labor, and precise dimensions compared to traditional cast-in-place methods.

Ideal for commercial, industrial, and municipal projects, these miscellaneous products offer flexibility, reliability, and efficiency, providing practical solutions for virtually any application where strength and durability are required.

3000 lb. DOCK ANCHOR
Download PDF

4000 lb. DOCK ANCHOR
Download PDF

6000 lb. DOCK ANCHOR
Download PDF

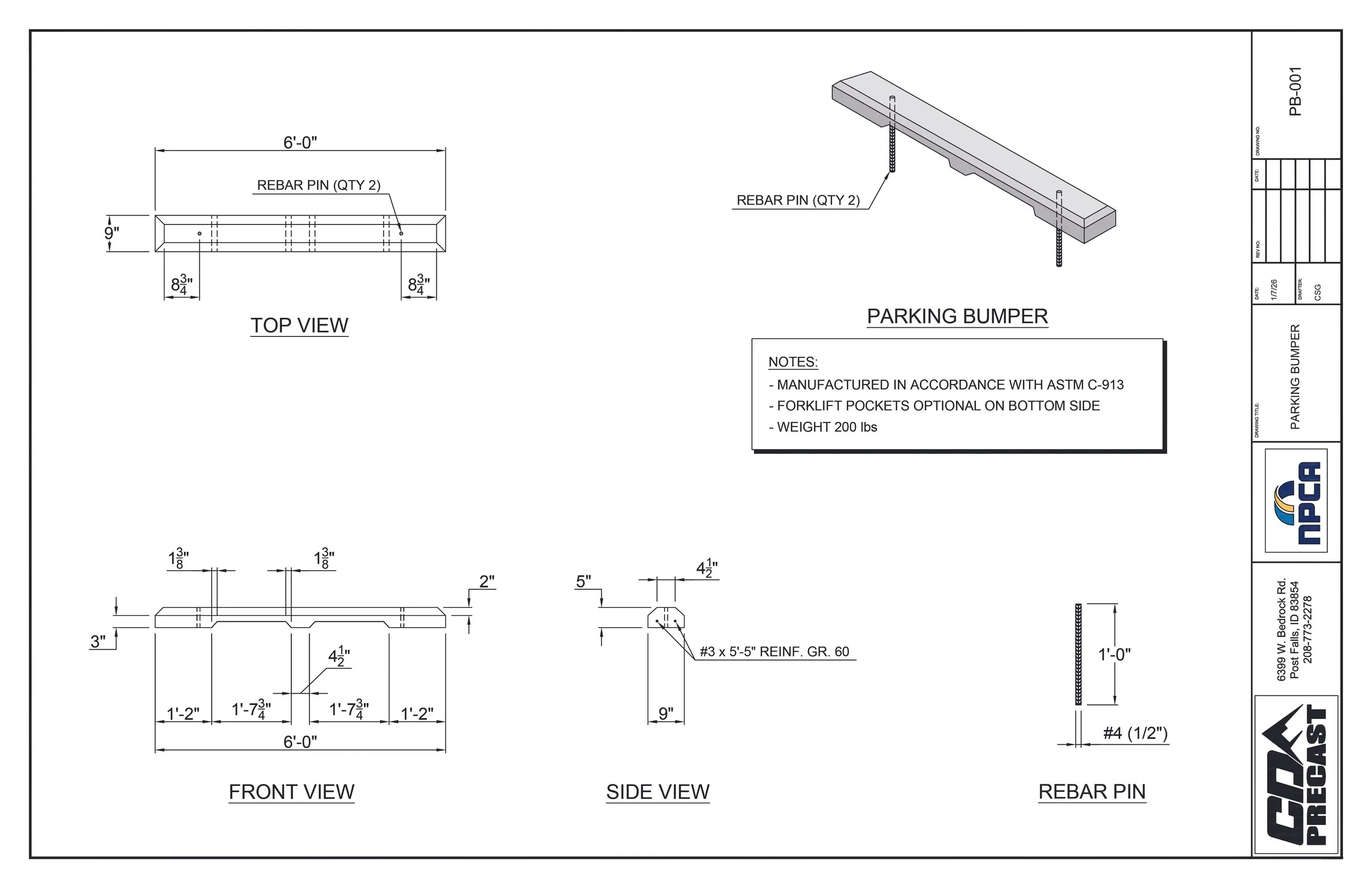
PARKING BUMPER
Download PDF

THRUST BLOCK
Download PDF

PDI BLOCK
Download PDF

EQUIPMENT PAD
Download PDF